ДНЕВНИК ЗАБЛУДА: Дистопијски урбанизам

Слободан Малдини

15. 12. 2020. у 11:02

У недавном интервјуу америчком магазину за популарну културу "Ролинг Стоун", стари рокер и неуморни борац за људска права Роџер Вотерс упозорио је да је свет дошао на ивицу катастрофе.

ДНЕВНИК ЗАБЛУДА: Дистопијски урбанизам

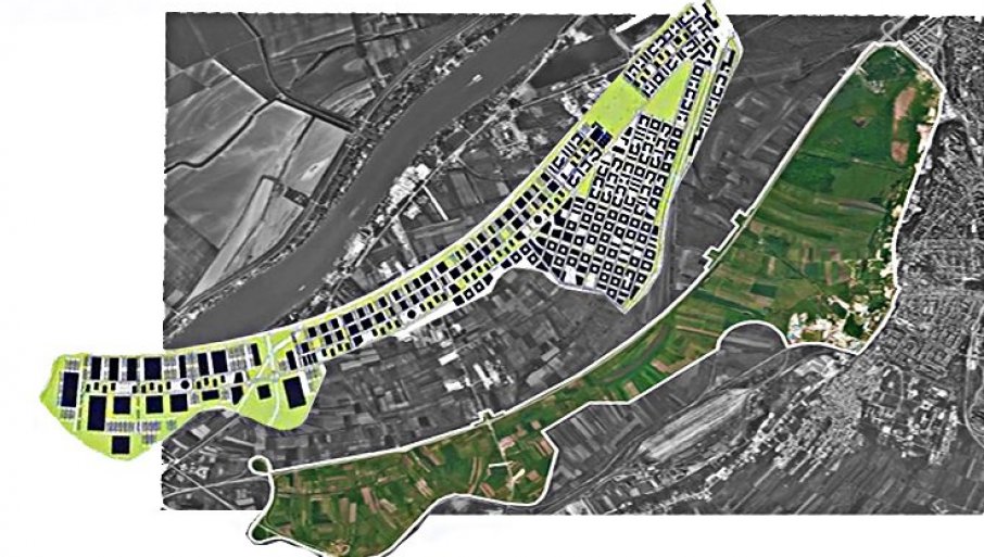
Данашњи и новопројектовани изглед Макишког поља / Фото лична документација

Глобално лудило достигло је неслућене размере јер је створена незамислива концентрација моћи у рукама појединаца који по образовању, култури, али и психички, не могу бити дорасли позицији у којој се налазе. Марк Цукерберг, власник најутицајније друштвене мреже "Фејсбук" која утиче на животе најмање 2,7 милијарде људи и чија вредност на тржишту износи више од 500 милијарди долара, преко ноћи је стекао незамисливу планетарну моћ, чак већу од оне којој пола века теже безбедносне организације попут ЦИА.

Лари Пејџ, власник више од 1.000 милијарди вредног "Гугла" и њене матичне компаније "Алфабет", поседује инструменте којима мења будућност цивилизације. Али, концентрација снаге појединаца над друштвом присутна је и изван информационих технологија, а срећемо је и на пољу нашег урбанизма.

У изборној 2017. српски џентри Богољуб Карић се после 11 година егзила у Русији вратио у Србију "на велика врата", доносећи идеје милионских пројеката. Најавио је градњу милион квадрата станова цене 480-500 евра и представио свој "Тесла град". За нови урбанистички подухват српска престоница је обезбедила локацију Макишко поље, "Београду на води" неконкурентну јер је удаљена од центра десетак километара.

Поред упозорења струке да је Макишко поље планом заштићено од градње јер се испод њега налазе највеће резерве пијаће воде у региону стратешки значајне за опстанак престонице, а држава затражила кредит Европске банке ради улагања у ово водоизвориште, Град Београд је донео одлуку о реализацији новог сателитског хиперурбаног насеља.

Супротно важећем плану, спроведен је урбанистички конкурс који предвиђа градњу чак 856.800 квадратних метара стамбеног простора плус пословне и јавне објекте, и подељене награде победницима.

Године 2020. градска власт је активирала изградњу дистопијског града на Макишком пољу, најавивши убрзано усвајање новог Плана детаљне регулације за ово подручје. Њиме се омогућава потпуна урбанизација главног изворишта пијаће воде у Београду.

И овога пута, струка упозорава да прописи то не дозвољавају. Ни спровођење јавне расправе по кратком поступку није могуће, јер услед пандемије није дозвољено одржавање скупа већег броја људи.

Указујући на могуће угрожавање здравља грађана и стратешку погубност пројекта, струка указује на неодрживост пројекта у будућности. Јер, неодговорно је садашњих 90 процената зелених и пољопривредних површина преко ноћи свести на само пет процената будућег градског зеленила! Проблем је и саобраћајна веза са центром Беграда, упућена на упитан пројекат метроа који предвиђа да на данас ненастањеном Макишком пољу буде његова почетна станица?!

Пратите нас и путем иОС и андроид апликације

Pratite vesti prema vašim interesovanjima

Novosti Google News
КОЛИКО БИ ТРЕБАЛО ДА СТАВИТЕ У КОВЕРТУ ДА СЕ НЕ ОБРУКАТЕ Од цифре да се заврти у глави, детаљна рачуница

КОЛИКО БИ ТРЕБАЛО ДА СТАВИТЕ У КОВЕРТУ "ДА СЕ НЕ ОБРУКАТЕ" Од цифре да се заврти у глави, детаљна рачуница

ЦЕНА столице на свадбама у Србији ове сезоне кошта и до 120 евра по госту, а у коверту не би требало ставити мање од 100 евра, "да се не осрамотите" где год да сте на весељу - неважно да ли у Београду, Врању, Суботици, Лозници, Бору...

24. 03. 2026. у 22:24

ПРОВОЦИРАЛИ НА ГОДИШЊИЦУ НАТО АГРЕСИЈЕ: Ухапшена четворица Албанаца у Србији, погледајте снимке (ВИДЕО)

ПРОВОЦИРАЛИ НА ГОДИШЊИЦУ НАТО АГРЕСИЈЕ: Ухапшена четворица Албанаца у Србији, погледајте снимке (ВИДЕО)

ПРИПАДНИЦИ Министарства унутрашњих послова, Управе криминалистичке полиције ухапсили су на територији Републике Србије А. С. (1989), Е. В. (1984), Е. Г. (1978) и А. Ц. (2005) држављане Републике Албаније због постојања основа сумње да су извршили кривично дело изазивање националне, расне и верске мржње и нетрпељивости.

24. 03. 2026. у 20:17

ИМА ЖИВОТА И БЕЗ ЕУ - ОНА ЈЕ САМО СЕНЗАЦИЈА Милановић изненадио изјавом: Она је фасада и надоградња, и то док траје...

"ИМА ЖИВОТА И БЕЗ ЕУ - ОНА ЈЕ САМО СЕНЗАЦИЈА" Милановић изненадио изјавом: "Она је фасада и надоградња, и то док траје..."

ХРВАТСКИ председник Зоран Милановић примио је данас у Загребу македонску председницу Гордану Сиљановску Давкову и поручио да процес приступања њене земље предуго траје, да не може да даје савете, али да има живота и без Европске уније (ЕУ).

25. 03. 2026. у 10:29

Коментари (0)

СТРОЖА РЕГУЛАТИВА ДАЛА РЕЗУЛТАТЕ: Снажан фокус на заштити малолетника